Amazon Loft Antalya Konut Projesi
Durum
Devam Ediyor...
Proje Tipi
Konut
Proje Alanı
1500 M2
Başlangıç Tarihi
23 Haziran 2023
Proje Hakkında
Amazon Loft İnşaat olarak tamamladığımız bu proje, modern mimari çizgilerin sağlam mühendislikle birleştiği özel bir yapı çalışmasıdır. Projenin tüm süreçleri; keşif, planlama, mimari tasarım, statik hesaplamalar, kaba ve ince işçilik aşamaları titizlikle yönetilerek hayata geçirilmiştir.
Bu yapıda uzun ömür, güvenlik ve estetik ön planda tutulmuştur. Kullanılan tüm malzemeler TSE standartlarına uygun olup; beton kalitesi, demir donatı sistemi, yalıtım uygulamaları ve iç mekân detayları yüksek kalite anlayışıyla seçilmiştir. İnşaat sürecinin her adımı saha mühendislerimiz tarafından düzenli olarak kontrol edilerek sorunsuz bir teslim süreci sağlanmıştır.
Projenin teslimiyle birlikte kullanıcıya enerji verimliliği yüksek, yaşam alanı modern, dayanıklı ve fonksiyonel bir yapı sunulmuştur. Tasarımda maksimum ferahlık, doğal ışık kullanımı, geniş kullanım alanları ve ergonomik detaylar ön planda tutulmuştur.
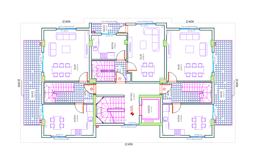
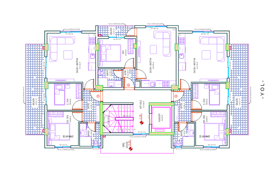
Amazon Loft, her projede olduğu gibi bu projede de zamanında teslim, kaliteli işçilik ve müşteri memnuniyeti ilkelerini esas almıştır. Görsellerde de görebileceğiniz gibi proje, hem teknik açıdan hem mimari estetik açısından beklentilerin üzerinde bir sonuç ortaya çıkarmıştır.
Detaylar
24x7 Güvenlik
Sİtede 7/24 Güvenlik Görevlisi Vardır
Camera Sistemi
Site Çevresi 7/4 Camera Siztemi İle Korunmaktadır
Otopark
Sitemizde Geniş Otopark Alanı
Depreme Dayanıklı
yapımız Deprem Yönetmenliğine Uygun İnşa Edilmiştir
Kolay Ulaşım
Duraklar ve Ulaşıma Yakın
Sağlık & Eğitim
Eğitim ve Sağlık Alanı Yürüme Mesafesi
Yeşil Alan
yeşil alan ve sosyal tesis alanı
Çocuk Oyun Alanı
Çocuk Eğlence & Oyun Alanı